Machining Process Plan Interpretation - Vise

Greetings all! I am a tyro; just foraying into mechanical engineering. While I have yet to take the machining workshop lesson (probably in the next semester), I would like to self-learn and discover upfront about milling, lathing, and drilling. I do have preexisting experience about the three machines but I'm not that good in selecting the right cutting tools.

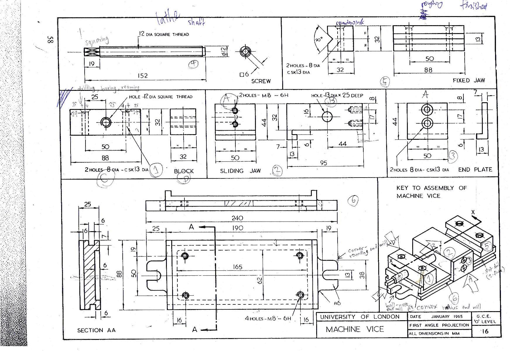
Here I attached a technical drawing of a machine vise I took from some Internet source randomly. I simply need help from all of you who are far more experienced in determining the appropriate cutting tools, their respective cutting speeds, cutter diameters, number of flutes of the cutters, feed per tooth, etc. for each of the six components of this tool steel-based machine vise. This is for my personal exercise.

Thank you more than words could express!
P.S. Ignore the doodles on the paper.

2 Answers

here is a website that may be of use http://industrialhistory.org/education/videos/
From this you can watch or download old machine shop training videos made from original 16mm films. It is all very old school but if you want to learn basic machine shop, a great place to start.

Let's go piece by piece.

Screw (conventional lathe):

a. Face the end with as little extended from the chuck as is necessary
b. Center drill the end for live center
c. Extend at least 140 mm from the chuck with live center and turn the threads
1. You could always opt to turn threads away from the headstock with an upside-down mounted tool and CCW spindle rotation. I typically use this method, rather than turning to a shoulder and/or close to the headstock, but in this case, you have plenty of time to disengage the half-nut, turning towards the headstock
d. If using stock close to finial length; take part out, face the other end to establish 152 mm length. If using longer stock, part to length.
e. A few different ways to cut the 6 mm drive...
Using the bottom of a tool (I'd opt for a 25 mm with 1 mm radius, as I would not want a sharp corner at the shoulder)
a. Use a square collet block clamped in a vise with a stop against it; flip 4 times
b. Use an indexing type unit and index 90º for each cut
Using the side of a tool (would only use this method if I could extend the end 25 mm or less and make the cut... the same 25x1mm end mill with at least 20 mm cutting length would be fine)
a. indexing head, chuck, etc., mounted such that the part axis is parallel to the mill spindle axis
b. the rest should be pretty straight forward

2. Fixed Jaw (conventional mill)
a. Machine stock square
b. Drill and c'sink holes
c. Place part in 90º v-block in a vise or on a 45º angle parallel (stack), clamp across the ends with the vise. Machine the V with a square corner end mill. Choose an end mill large enough to span the floor (10 mm +). When it comes to tools, unless there are restrictions to clearance, cutting loads, etc., always use the largest (stiffest) tool available
If you ever plan to hold something square in this, you might opt to relieve the bottom of the 'V' with a small end mill

3. Block (conventional mill)
a. Should be straight forward; square stock, drill, c'sink, tap

4. Sliding jaw (conventional mill)
a. square stock (5-sides) the long side with the 13 mm feature is best left till after the roughing, since most of the material is going onto the floor
b. rough and finish the 12 mm (44-32) deep step, up to the 13 mm feature's shoulder
c. The 44 mm dimension's face is a clearance face; look at the way it fits into the base and machine accordingly
d. use a "woodruff" style end mill to cut the 6 mm recess underneath. You will need at least 6 mm of reach (radial) and again, larger shank = stiffer tool. I would opt for a 5 mm wide cutter with either a small chamfer or radii, a 5 mm width gives you more control of the final sizing, since you can then step-up <1 mm, make a cut and gauge to determine the final sizing.

**keep in mind that any radii or chamfer will require chamfering on the fit part for proper clearance**

Yes.. you could simply cut it with a 6 mm wide tool and then adjust the base's step for the fit you want but that means that, making this part to print for a replacement requires measuring fitting the next time it's made. This 'is' an old toolmaking practice but it's one that gets a lot of shops into trouble when they try to apply it to say... inserts for molds, slides, etc.. If you are engineering parts, then part of your job is to convey the proper fit, finish, etc., with dimensioning and tolerancing. And that's my spiel on that...

5. End Plate
a. I don't like this part as it's made the location of c'sink holes critical to the fit/function of the 6 mm wide tab. In this configuration, the location of these holes relative to the inboard wall of the 6 mm tab is critical to establishing running clearance, and should be dimensioned from that reference.
The function is to limit lift of the sliding jaw... but there are much better ways to do this without relying on c'sink screw locations. Design aside, the machining is pretty straight forward for this piece in a conventional mill.
Keep in mind... you can always remove material, so in any critical areas where you might be concerned with the final fit, aim for 'steel safe' tolerances, where you could come back, machine or grind some material off and make the component fit.

6. Base
a. Square the blank. 5 sides are fine as most of the work is going to be performed from the top view and most of the material is going on the floor
The location, flatness and parallelism of the base, bed (where the jaws slide) and the 6 mm slot are critical in relation to one another. Too much clearance in the upper portion of the 6 mm slot will allow lift in the floating jaw... too little could lead to binding.

setup:
Top view, centered and clamped in a vise that's no wider than 180 mm. This works really well, because it give you clear access to both ends without removing the part. That said, we do not want to move this part from the vise until all critical machined surfaces are machined and qualified. Blank's base should be no more than 12 mm below the vise jaws.

Biggest mistake I see in shops...
When you place the blank in the vise, there is NO guarantee that the top surface is parallel. You should first qualify the part on a surface plate, so that you know what it 'should' check once placed in the vise. Placed & clamped in the vise, it should be checked with a test indicator so that we know it is in fact, sitting correctly. If you don't check, then you don't know... and things get problematic from there out.

1. Machine the end contours; all of which can be done with a 12 mm end mill that has at least 25 mm cutting length. Tip: always choose the shortest length of tool necessary. Again... stiffness. Since you are roughing and finishing material, including the slot, choose no more than 4-flutes. Higher flute-counts are great for finishing operations on critical walls, but more flutes = less clearance for chip evacuation. Slotting in short chipping ferrous materials is typically fine with a 4-flute as well.
2. Machine the step (don't see a dimension) for both clamp-down tabs
3. Rough machine the 6 mm depth bed
4. Finish machine the 6 mm depth bed and end rails
6. Use a 6 mm wide 'woodruff' style cutter to machine the 6 mm slide groove. Keep in mind that the bottom of the groove (closest to the base) is clearance and that the top of the groove sets the sliding clearance. This dictates a rough cut at a lower (Z minus) setting. And, you might as well rough both sides at this setting.
Then measure, and establish the finishing height for this cutter that gives the proper running clearance.

I will give you this advice as well.... always lock the spindle against the top-nut with the height adjustment nut. Don't rely on the spindle's handle lock. You can then place a dial indicator on the knee with a magnetic base for more accurate movement. Once moved, lightly lock the knee with both lock levers. Unlock them when moving the knee.

Machining everything in one setting makes it easier to establish parallel relationships between machined features. Rough features first... then return to them for finishing/critical cuts, which should always be the last cuts you make on a finished component.

Some of these components need to be hardened if you want to get any longevity. That said, the process changes a bit when heat treating is involved in that roughing is typically done pre-treatment with finishing after. You can mill hardened finishes and I've been working in mold/die shops for some time where that is the standard workflow. Most of the companies I've worked with have opted to machine direct from hardened blanks to reduce leadtimes, so it's not unheard of these days at all. It however does change the way you tackle a machining project like this, but I figure, this at least gives you the basic overview of the process.

I'd also recommend investing in a Machinery Handbook and spending some time learning about tool materials, cutting speeds and feeds. Always follow the tool manufacturers recommendations to establish a baseline but the Machinery Handbook will give you decent starting points for any tool you just so happen to pick up in the shop... not to mention, you will be using it throughout your career as an Engineer.